了解你所用語言和所在地區的世邦工業的信息.
24H全國咨詢熱線
021-58386699
縱觀行業起伏,聚焦行業熱點,世邦工業人用獨特的視角記錄并解讀行業市場動態。關注世邦工業,關注行業新動向。
bauma CHINA 2018(上海寶馬工程機械展),第九屆中國國際工程機械、建材機械、礦山機械、工程車輛及設備博覽會,將于2018年11月27-30日在上海新國。。。
2018-11-15查看詳情
新一屆砂石骨料大會即將開啟,這里是來介紹一下與之有關的一些信息。
2018-11-14查看詳情
2018上海寶馬展有許多參展企業,世邦是其中之一,這里就是來介紹一下世邦在2018上海寶馬展的優惠政策。
2018寶馬展即將在上海開幕,這里是來介紹一下其開幕的時間、地點等相關信息。
新一屆寶馬展-2018上海寶馬展即將到來,在這激動人心的時刻,世邦來為大家介紹一下關于寶馬展門票以及登記注冊的相關信息。
洗砂機是制砂生產線的重要一環,如果缺少了洗砂一環,導致眾多雜質夾雜在石料中,會大大影響制砂效率和砂石品質。洗砂機看似簡單,其實也有很多技術參數不是能夠輕易達到的。
銅礦石在冶金行業有著重要的應用,其應用需要先開采,其開采需要先找到礦石所在,鑒于這種情況,這里是來介紹一下銅礦石的分布地區以及其如何處理的問題。
2018-11-13查看詳情
赤泥是一種具有再利用價值的工藝廢棄物,這里是來介紹一下它的用途,以及加工的過程。
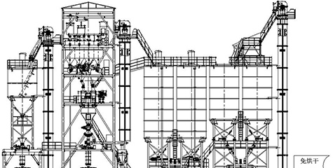
干混砂漿生產線是礦山生產領域的生產工藝之一,但有很多人對該生產工藝還不了解,這里就是由世邦帶您來了解一下這一生產線。
全國服務熱線:400-696-1899
銷售熱線:021-58386699
滬ICP備06053530號-1© 世邦工業科技集團股份有限公司 版權所有網站地圖 | 法律聲明 | 聯系我們